DKC (CONCHIGLIA) - CON078918109 GH9-8/8/T-4 ARMADIO SMC GRAFI-9 - 078918109

Melden Sie sich an, um Preise und Verfügbarkeit anzuzeigen
EAN
8054684013971
Artikelnummer
CON078918109
Herstellernummer
078918109
Hersteller
DKC
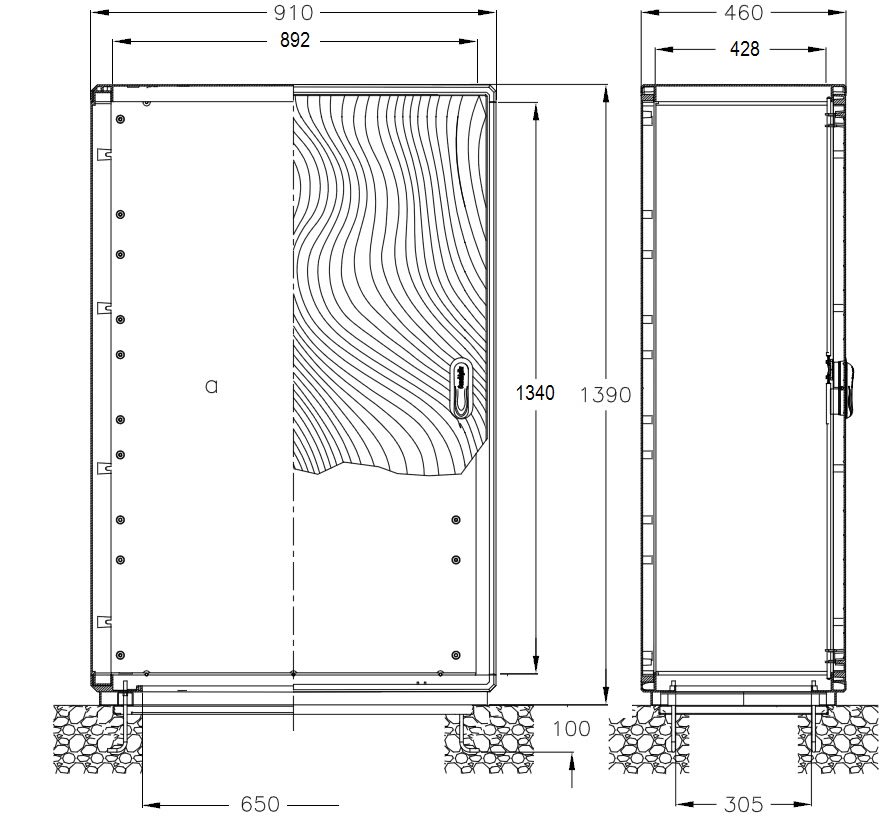
Armadio a 1 vano in vetroresina (SMC) colore RAL 7038. Maniglia in resina termoplastica, tenone di manovra in acciaio zincato; aste e paletti interni in acciaio con trattamento GEOMET 321. Cerniere esterne non accessibili in acciaio inox. Telaio in acciaio zincato e verniciato. Guarnizioni di tenuta realizzate in EPDM espanso. Tensione nominale di isolamento Ui 690V. Completo di telaio di ancoraggio per installazione su basamento in calcestruzzo. Porta incernierata completa di chiusura azionabile con maniglia a scomparsa e serratura di sicurezza a cifratura unica Y21 (cilindro a profi lato DIN18252-a richiesta cifrature personalizzate). Equipaggiabile con piastre di fondo e accessori dedicati per realizzazione quadri. Pareti di fondo munite di borchie predisposte per inserimento di inserti filettati con prigioniero per fissaggio accessori M6 x 20.



