NOVALUX S.P.A. - NOX101803.99 L-16 EVO: T OPALE 1+1M - 101803.99

Melden Sie sich an, um Preise und Verfügbarkeit anzuzeigen
Packung
1 ST
EAN
8026833085535
Artikelnummer
NOX101803.99
Herstellernummer
101803.99
Hersteller
NOX
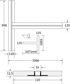
L-16: Profilo a T in catongesso. Per installazione ad incasso in cartongesso a parete o a soffitto. Corpo in cartongesso da lastra standard spessore 12,5 mm, 100% naturale, ad integrazione totale. Profilo dissipante in lega di alluminio anodizzata naturale. Schermo di protezione in PMMA opale. Tutte le parti sono tagliabili a misura in opera. Dimensione: 1066X998mm.



