OBO BETTERMANN - OBO6216465 LG 112 VS 6 FT PASSERELLA FORATO, CON PI

Accedi per visualizzare prezzi e disponibilità
Caratteristiche principali
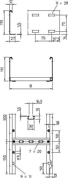
Larghezza - 200 mm
Tipo di gradino - Profilo perforato
Altezza - 110 mm
Lunghezza - 6000 mm
Materiale - Acciaio
Confezione
6 M
EAN
4012195065371
Codice prodotto
OBO6216465
Cod. produttore
6216465
Produttore
OBO
Larghezza:
200 mm
Tipo di gradino:
Profilo perforato
Altezza:
110 mm
Lunghezza:
6000 mm
Materiale:
Acciaio
Tipo di profilo laterale:
Profilo piatto
Superficie:
Zincato a caldo
Fissaggio dei gradini:
Rivetto cieco
Foratura laterale:
sì
Distanza tra i gradini:
300 mm
Adatto per la resistenza al fuoco (REI):
no
Qualità del materiale:
Altri
Sezione utile:
18800 mm²
Peso:
4 kg/m